Falcon / 13542M

Share this home

Floor Plan Details

Manufactured

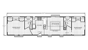
Beds: 2     Baths: 2.00     Sq Ft: 708     W x L: 13′ 0″ x 54′ 0″

Built by: Chariot Eagle

The Falcon / 13542M built by Chariot Eagle offers a bright, balanced layout designed for easy everyday living. With 708 square feet, 2 bedrooms, and 2 bathrooms, The 13542M delivers comfort and smart use of space. The kitchen sits at the center of the home and opens to a welcoming living room, creating a natural place to relax or entertain. Bedrooms are set on opposite sides for added privacy, each with convenient access to a full bath. The 13542M is a stylish, well-planned home that brings comfort, function, and charm together.

Tours & Videos

3D Tour

No 3d Tour Available

Floor Plan

Plan Specifications

No specification data available

Photo Gallery

PLEASE NOTE:

All sizes and dimensions are nominal or based on approximate builder measurements. Spartan Homes reserves the right to make changes due to any changes in material, color, specifications, and features anytime without notice or obligation.

Se Habla Español