Falcon / 13582E

Share this home

Floor Plan Details

Manufactured

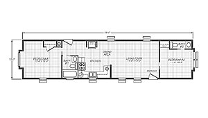
Beds: 2     Baths: 1.50     Sq Ft: 762     W x L: 13′ 0″ x 58′ 0″

Built by: Chariot Eagle

The Falcon / 13582E built by Chariot Eagle delivers extra room and a smart layout designed for comfort. With 762 square feet, 2 bedrooms, and 1.5 bathrooms, The 13582E offers a spacious feel while keeping everything easy to enjoy. The kitchen sits beside a bright dining area and flows into a large living room that is perfect for relaxing or entertaining. The primary bedroom is set apart for privacy, while the second bedroom sits near a convenient half bath. The 13582E is a welcoming home that blends space, function, and everyday comfort.

Tours & Videos

3D Tour

No 3d Tour Available

Floor Plan

Plan Specifications

No specification data available

Photo Gallery

PLEASE NOTE:

All sizes and dimensions are nominal or based on approximate builder measurements. Spartan Homes reserves the right to make changes due to any changes in material, color, specifications, and features anytime without notice or obligation.

Se Habla Español