Factory Expo / 13321A

Share this home

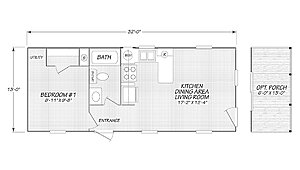
Floor Plan Details

Manufactured

Beds: 1     Baths: 1.00     Sq Ft: 416     W x L: 13′ 0″ x 32′ 0″

Built by: Chariot Eagle

The Factory Expo / 13321A built by Chariot Eagle is a bright and efficient home designed to make the most of every square foot. Offering 416 square feet with 1 bedroom and 1 bathroom, The 13321A blends comfort and smart design in a welcoming layout. The open kitchen, dining, and living area creates a warm space for relaxing or hosting friends. A private bedroom sits near the full bath and utility area for everyday ease. With its inviting flow and thoughtful use of space, The 13321A delivers stylish living in a compact home you will love.

Tours & Videos

3D Tour

No 3d Tour Available

Floor Plan

Plan Specifications

No specification data available

Photo Gallery

PLEASE NOTE:

All sizes and dimensions are nominal or based on approximate builder measurements. Spartan Homes reserves the right to make changes due to any changes in material, color, specifications, and features anytime without notice or obligation.

Se Habla Español