Eagle / 13291A

Share this home

Floor Plan Details

Park Model

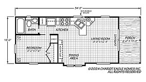
Beds: 1     Baths: 1.00     Sq Ft: 395     W x L: 13′ 0″ x 29′ 0″

Built by: Chariot Eagle

The Eagle / 13291A built by Chariot Eagle is a charming home that blends comfort and smart design into 395 square feet. With 1 bedroom and 1 bathroom, The 13291A offers a layout that feels open, bright, and welcoming. The kitchen connects easily to the dining area and living room, creating a warm space for everyday living or entertaining. A private bedroom sits nearby for quiet relaxation, while the front porch adds a perfect spot to enjoy fresh air. The 13291A delivers cozy living, efficient design, and a place you will love coming home to.

Tours & Videos

3D Tour

No 3d Tour Available

Floor Plan

Plan Specifications

No specification data available

Photo Gallery

PLEASE NOTE:

All sizes and dimensions are nominal or based on approximate builder measurements. Spartan Homes reserves the right to make changes due to any changes in material, color, specifications, and features anytime without notice or obligation.

Se Habla Español